Skip to main content
  • ConceptWall 86 Vliesgevels - Office building Höfdatorg gelegen in Reykjavik, IJsland
  • ConceptWall 86 Vliesgevels - Office building Höfdatorg gelegen in Reykjavik, IJsland
  • ConceptWall 86 Vliesgevels - Office building Höfdatorg gelegen in Reykjavik, IJsland
  • ConceptWall 86 Vliesgevels - Office building Höfdatorg gelegen in Reykjavik, IJsland
  • LWW Architekten
  • PK -Arkitektar

Höfdatorg

Reykjavik - IJsland - 2009

Het op één na hoogste gebouw van Reykjavik is onderdeel van een ambitieus project dat het ruige klimaat weerstaat met een elegante, optimistische en stralende architectuur. De architectuur contrasteert niet alleen met de weersomstandigheden in IJ sland, maar ook met het economische klimaat waarin de toren is gerealiseerd. De plannen zijn gemaakt in de jaren van voorspoed, de bouw vond plaats in het economische rampjaar 2009 toen de volle omvang van de financiële crisis duidelijk werd.

De toren maakt deel uit van Höfðatorg, een complex op een steenworp afstand van de villa Höfði, waar Ronald Reagan en Michael Gorbatsjov elkaar in 1986 ontmoetten om te praten over de ontmanteling van hun kernwapenarsenaal. De negentien verdiepingen tellende en zeventig meter hoge toren is een van de zes gebouwen van Höfðatorg dat is gebaseerd op een gezamenlijk masterplan van PK Arkitektar en LWW Architekten. Het IJslandse bureau PK Architektar is verantwoordelijk voor de architectonische uitwerking van het plan. De letters P en K zijn de initialen van de oprichter van het bureau, Pálmar Kristmundsson. Tot nu toe zijn slechts twee van de zes bouwvolumes met een gemengde woon-, werk- en recreatiefunctie gerealiseerd. Met zijn onregelmatige patroon van schuin geplaatste glasvlakken in de verder vlakke gevel, slaagde PK Arkitektar erin een bouwwerk met een levendige uitstraling tot stand te brengen. Behalve de technische realisatie van deze complexe gevel was de hamvraag hoe kon worden voldaan aan comforteisen bij de IJslandse weersomstandigheden, met extreme wind en lage temperaturen. Op verzoek van de architect werd op de begane grond een vakwerkconstructie met grote geklemde glaspanelen aangebracht. Voor de toren wilde hij gesoldeerde glazen panelen, zowel vast als beweegbaar, geïntegreerd in een modulair systeem . De keus viel op een CW 86 cassettegevel met het oog op de verwachte slechte weersomstandigheden tijdens de installatie en om de bouwperiode voor de 70 meter hoge toren zo kort mogelijk te houden.

ConceptWall 86 Vliesgevels - Office building Höfdatorg gelegen in Reykjavik, IJsland

Skyline van Reykjavik

ConceptWall 86 Vliesgevels - Office building Höfdatorg gelegen in Reykjavik, IJsland

Binnenaanzicht; CW 86-EF -profielen

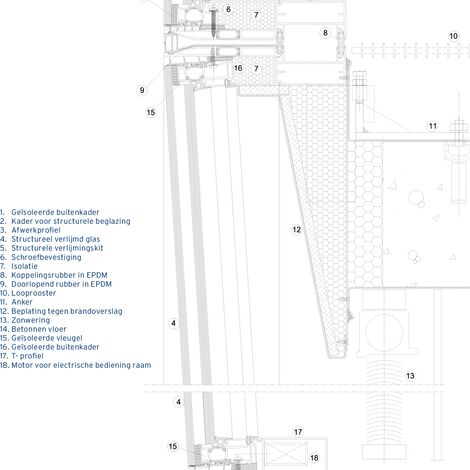
Voor de gevel heeft Reynaers vier verschillende modulaire elementen ontwikkeld, gebaseerd op een module van 1,5 meter breed en 3,5 meter hoog: geheel vaste elementen met verticaal glas en tuimelramen over de totale breedte van het element; elementen met schuine ruiten, vast of met tuimelramen, en hoekelementen van 64 en 116 graden. Voor de scherpe en stompe hoeken van de toren werden speciale elementen met verticale T-profielen ontwikkeld om het vereiste visuele effect te bewerkstelligen. Om uniformiteit te behouden, loopt de silicone dichtingsstrip door in de silicone dichtingsstrip tussen de binnen- en buitenruiten. Voor de schuine glaselementen ontwikkelde Reynaers een nieuw modulair vliesgevelsysteem, gebaseerd op CW86-EF. Deze vliesgevel bestaat uit een hoofdframe met de vereiste draagelementen, die zijn vastgemaakt aan de betonnen skelet van het gebouw. Binnen deze draagconstructie is een vast kozijn of valkozijn aangebracht om het glas te ondersteunen. Alle tuimelramen zijn motorisch aangedreven en de motor is in het systeem geïntegreerd.

ConceptWall 86 Vliesgevels - Office building Höfdatorg gelegen in Reykjavik, IJsland

Voor de scherpe en stompe hoeken van de toren werden speciale elementen ontwikkeld

Voor deze oplossing ontwikkelde Reynaers een 250 mm diep, thermisch geïsoleerd buitenkozijn met horizontale en verticale draagbalken om de glaspanelen te ondersteunen. Het systeem moest bestand zijn tegen de verwachte hoge windsnelheden van meer dan 280 km per uur. De windbelastingstest van dit systeem, tot 4000 Pa, was de meest extreme prestatiebeproeving die ooit is uitgevoerd aan het Reynaers Institute. Met al deze voorzieningen kon zowel worden voldaan aan de esthetische wensen van de architect als aan de technische en energetische eisen. Het resultaat is een toren die op IJsland zijn gelijke niet kent. Tijdens de crisis werd Höfðatorg gezien als symbool van de financiële rampspoed die het land in zijn greep hield. Nu de economie langzaam opkrabbelt, kan de toren in een wat optimistischer daglicht worden gesteld. Deze architectuur kan worden gezien als een glorieuze overwinning, gezien de talloze problemen die tijdens de bouw van de toren het hoofd moesten worden geboden.

ConceptWall 86 Vliesgevels - Office building Höfdatorg gelegen in Reykjavik, IJsland

Tekening: modulair element

ConceptWall 86 Vliesgevels - Office building Höfdatorg gelegen in Reykjavik, IJsland

a – Horizontale doorsnede van schuin geplaatst glasvlak

ConceptWall 86 Vliesgevels - Office building Höfdatorg gelegen in Reykjavik, IJsland

b-b’: Verticale doorsnede met schuin geplaatste glasvlakken

Gebruikte Reynaers Aluminium systemen

Partners bij dit project

Architect

  • LWW Architekten
  • PK -Arkitektar

Fabricator

  • Gluggar in cooperation with ASF

Fotograaf

  • Rafael Pinho

Andere belanghebbende

  • Eykt ehf., Reykjavik (General contractors)
  • Hans Ibelings (Authors)