Combineer ConceptWall 50 met Renson Fixscreen Minimal
Oververhitting van een ruimte wilt u vermijden, zeker bij grote glasoppervlakken van vliesgevels. In samenwerking met Renson ontwikkelde Reynaers Aluminium de ultieme productcombinatie van vliesgevels en doekzonwering. Het resultaat: vliesgevelsysteem ConceptWall 50 in combinatie met de Fixscreen Minimal Curtain Wall 50 van Renson.


Esthetische totaaloplossing
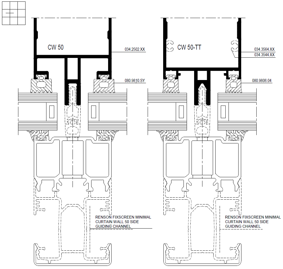
De combinatie van beide systemen vormt een esthetische totaaloplossing voor vliesgevels en is eenvoudig te installeren. De profielen worden afgewerkt met het gewenste afdekprofiel van ConceptWall 50. Met de combinatie van deze systemen heeft u in totaal slechts drie profielen nodig in plaats van vijf: het afdekprofiel en de basis klemlijst van Reynaers Aluminium en de koppelzijgeleider van Renson.
Uitvoerig getest
Deze productcombinatie is uitvoerig getest op onder andere onderlinge bevestiging en doorbuiging van de profielen bij extreem hoge druk. De windgarantie tot 130 km/u van de Fixscreen Minimal blijft behouden.

Fixscreen Minimal Curtain Wall 50
Met zijn minimalistische look sluit de Fixscreen Minimal Curtain Wall 50 naadloos aan bij het design van vliesgevelsysteem ConceptWall 50. Deze oplossing houdt rekening met de thermische uitzetting en is hierdoor oneindig koppelbaar. De koppelzijgeleider van slechts 50 mm (net zo breed als de ConceptWall 50 profielen) garandeert een centrale bevestiging naar de vliesgevel en dus het behoud van de integriteit ven de vliesgevel zelf.
Bestellen
Het Renson Fixscreen Minimal Curtain Wall 50-profiel is te bestellen bij Renson en niet leverbaar vanuit Reynaers Aluminium.

Meer weten?
Heeft u vragen over de combinatie van het ConceptWall 50 profiel met de Renson doekzonwerig? Neem dan contact op met de afdeling Support, bereikbaar via telefoonnummer +31 (0)492 - 56 10 31.