
Introductie MasterPatio VS – Vertical Slider
Reynaers Aluminium introduceert een nieuw verticaal schuifraam binnen het MasterPatio systeem: de MasterPatio VS. Dit systeem is volledig CE-getest en gecertificeerd voor de Europese markt.
Voor de productie en installatie van de MasterPatio VS is een speciale certificering vereist. Hiervoor dient onder meer een opleiding te worden gevolgd.
Met één druk op de knop opent u het raam en ontstaat een veilig balkongevoel – ideaal voor zowel woningen als hoogbouwprojecten. De bediening verloopt via een geïntegreerde buismotor.

Indelingen
De MasterPatio VS is beschikbaar in vier verschillende indelingen. Bij de uitvoeringen XQ en XQX kan het onderste vak bovendien worden uitgevoerd als kiepraam voor extra ventilatiemogelijkheden.


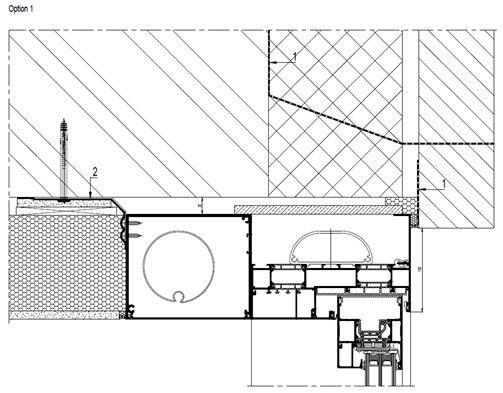
Verticale doorsnede

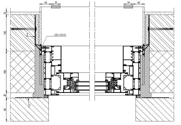
Horizontale doorsnede
Veiligheidsopties
Het systeem kan op drie niveaus van veiligheid worden geleverd.
- Basisuitvoering: bediening via een hold-to-run knop die zich minimaal 1,5 meter naast het element en duidelijk in het zicht bevindt.
- Uitgebreide beveiliging: met één of twee infrarood sensoren; onderaan voor vingerbeveiliging en (indien het element lager dan 2,5 meter is) ook bovenaan.
- Volledige beveiliging: met een lichtscherm over de volledige hoogte.
Certificering en verantwoordelijkheden
Voor de productie en installatie van de MasterPatio VS is een speciale certificering vereist. Hiervoor dient onder meer een opleiding te worden gevolgd.
Daarnaast gelden de volgende verantwoordelijkheden:
- De fabrikant/installateur is volledig aansprakelijk voor de installatie.
- Voorafgaand aan de berekeningen moet een risicoanalyse worden uitgevoerd.
- Alle afspraken en verantwoordelijkheden dienen vóór de verkoop helder te zijn vastgelegd.
- Na installatie moet doorlopende ondersteuning en 24/7 service worden aangeboden.
Integratie in Reynapro
De MasterPatio VS is nog niet standaard opgenomen in Reynapro. Op aanvraag is een update beschikbaar om het systeem volledig in de software te integreren.
Aandachtspunten ReynaPro
Belangrijke aandachtspunten voor de ingave in Reynapro.
- De MasterPatio VS vormt een aparte serie binnen Reynapro.

Subseries
- Er zijn drie subseries beschikbaar.

Configuraties
- Er zijn twee configuraties mogelijk.

Lichtscherm
- Wanneer een lichtscherm wordt toegepast, kan dit worden geselecteerd via de Positie-eigenschappen. De afdekkappen worden hierbij automatisch aangepast.

Ingave beslag
- Overige opties kunnen worden ingesteld bij de ingave van het beslag.

- Reynapro gaat standaard uit van gelijke glasmaten. Wanneer in geopende toestand een vlakke regel gewenst is, dient de deelbreedte handmatig te worden aangepast.
- Bepaalde CNC-bewerkingen worden niet automatisch uitgevoerd en moeten handmatig worden opgeroepen.
Meer weten?
Wilt u meer weten over de MasterPatio Vertical Slider? Neem dan contact op met de adviseurs van de afdeling Support, bereikbaar via telefoonnummer +31 (0)492 - 56 10 31.