Koppelen van vliesgevelprofielen
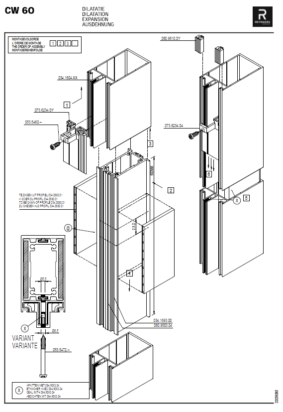
In de praktijk komt het regelmatig voor dat vliesgevels hoger zijn dan dat de profielen lang zijn. Dit betekent dat de stijlprofielen gekoppeld moeten worden. Het koppeldetail wordt dan uitgevoerd volgens het “dilatatie-detail”. Het koppelen van de stijlen gaat in combinatie met het kiezen van een juiste verankering, waarbij men kan kiezen uit een “vaste” verankering en een “losse” verankering.
Hoe werkt dat koppelen dan?
Reynaers heeft vastgesteld dat het dilatatie (koppel) profiel minimaal 600 mm lang moet zijn. Indien men het minimaal 600mm koppelprofiel toepast, komt deze voor de helft in het ene profiel en de andere helft gaat in het andere profiel. Wanneer een koppeling zo wordt uitgevoerd, mag het stijlprofiel gezien worden als een stijl uit één stuk en kan deze de windlast opnemen. Dit wordt bepaald door de ligging en hoogte van het gebouw in combinatie van de juist gekozen stijlprofiel.

Afsteunpunten
Hogere vliesgevels worden vaak op meerdere afsteunpunten vastgezet tegen de achterliggende bouwkundige constructie of de staalconstructie. Belangrijk bij de afsteuning: weet vóóraf of het glasgewicht gedragen dient te worden door énkel de vliesgevel óf dat het glasgewicht overgebracht mag worden naar de bouwkundige of staalconstructie. Dit bepaalt namelijk de wijze van verankering.
Verankering in de documentatie
Bij Reynaers kennen we twee soorten verankeringen: een “vaste” verankering en een “losse” verankering. Bij een vaste verankering wordt het glasgewicht in principe overgedragen naar de achterliggende bouwkundige of staalconstructie, terwijl bij een losse verankering het glasgewicht wordt gedragen door de vliesgevelconstructie. De wijze van verankering staat in de documentatie van de vliesgevels aangegeven onder hoofdstuk F: Montagetekeningen.
Meer weten?
Heeft u vragen over dilatatie bij vliesgevelprofielen? Neem dan contact op met uw accountmanager of de afdeling Support, bereikbaar via telefoonnummer +31 (0)492 - 56 10 31.