
Terrasdeuren in MasterLine 8
Het toevoegen van de “nieuwe” balkondeuren aan het bestaande MasterLine 8 systeem was geen optie meer sinds er in dit systeem geen subsystemen gebruikt konden worden. Daarom is er een nieuw systeem gecreëerd dat in eerste instantie alleen de “nieuwe” balkondeuren bevat, maar na verloop van tijd het complete “oude” MasterLine 8 systeem zal vervangen. In dit artikel ligt de focus op de balkondeuren.
Invoer van de elementen
1. Invoer
De invoer wijkt iets af van het bestaande MasterLine 8-systeem. In het “oude” systeem waren er geen subsystemen en werden de keuzes voor de balkondeuren gemaakt in de profielselecties. Het nieuwe systeem heet “MASTERLINE 8 Balcony doors Reynaers” en de subsystemen zijn “Frans Balkondeur/French Balcony Door (raambeslag)”, “Terrasdeur/Terrace Door (raamdeurbeslag)” en “Toegangsdeur/Enterance Door (deurbeslag)”.




De balkondeur vult u met raaminzetten
Wanneer de vraag verschijnt voor het kozijn rondom, klikt u op “Nee”.
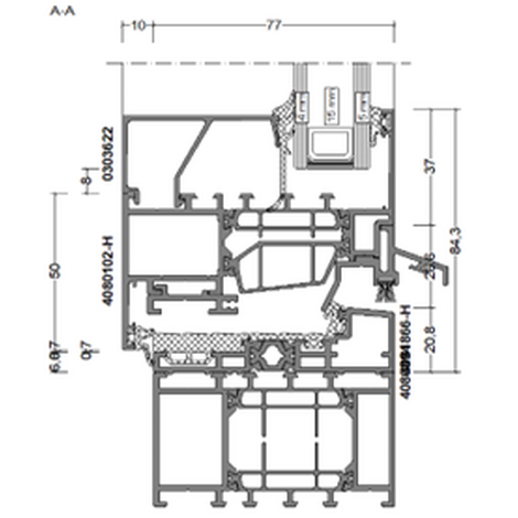
Aan de onderzijde van het kozijn kiest u het drempelprofiel 4081866.
2.1 Wandaansluiting
De verbredingsprofielen 4030894, … kunnen als wandaansluiting onder de dorpel worden toegevoegd.


2.2 Raambeslag
Enkel “Sobinco Chrono Invision Pro” beslag met insteekslot (Standaard, RC2/SKG,Plus) is mogelijk.



3. Terrasdeur
Net als bij de Frans Balkondeur moeten ook de terrasdeuren worden voorzien van raaminzetten. De invoer van een Terrasdeur in ReynaPro is hetzelfde als een Frans Balkondeur. Het enige verschil is het beslag:
- Alleen draai inzetten (binnen en buiten draaiend) kunnen worden gebruikt.
- Het beslag is een combinatie van raambeslag Sobinco Chrono Invision Pro (Standaard en RC2/SKG**) en deurbeslag (handgrepen, sloten, …).
- De handgreep bevindt zich altijd op een vaste hoogte van 1050 mm vanaf de onderkant van de vleugel.
4. Toegangsdeur
Ook de toegangsdeuren moeten worden toegevoegd met deurinzetten.


5. Opmerkingen
In ReynaPro zit de standaard aansluiting voor de drempel tussen de kozijnen, maar dit kunt u wijzigen naar onder de kozijnen door de verbinding tussen de kozijnen en de drempel aan te passen.
Meer informatie?
Heeft u vragen over de update in ReynaPro? Neem dan contact op met de afdeling Support, bereikbaar via telefoonnummer +31 (0)492 - 56 10 31.